Agro-food market + complementary functions, Bucharest, Romania

Project overview

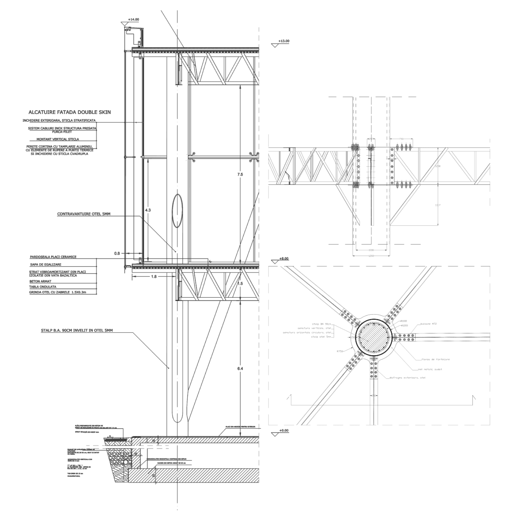
The project revitalizes Bucharest’s agro-food markets through sustainable design and modern structural technologies. Inspired by their historical and social value, it reinterprets these spaces for contemporary use, blending tradition with innovation. The aim is to restore the markets as active urban hubs of commerce, culture, and community while supporting sustainable urban development.

Specifications

Area of site

4500 m2

Date

2023

Tools used

ArchiCAD, 3dsMAX, V-Ray, Photoshop

Concept

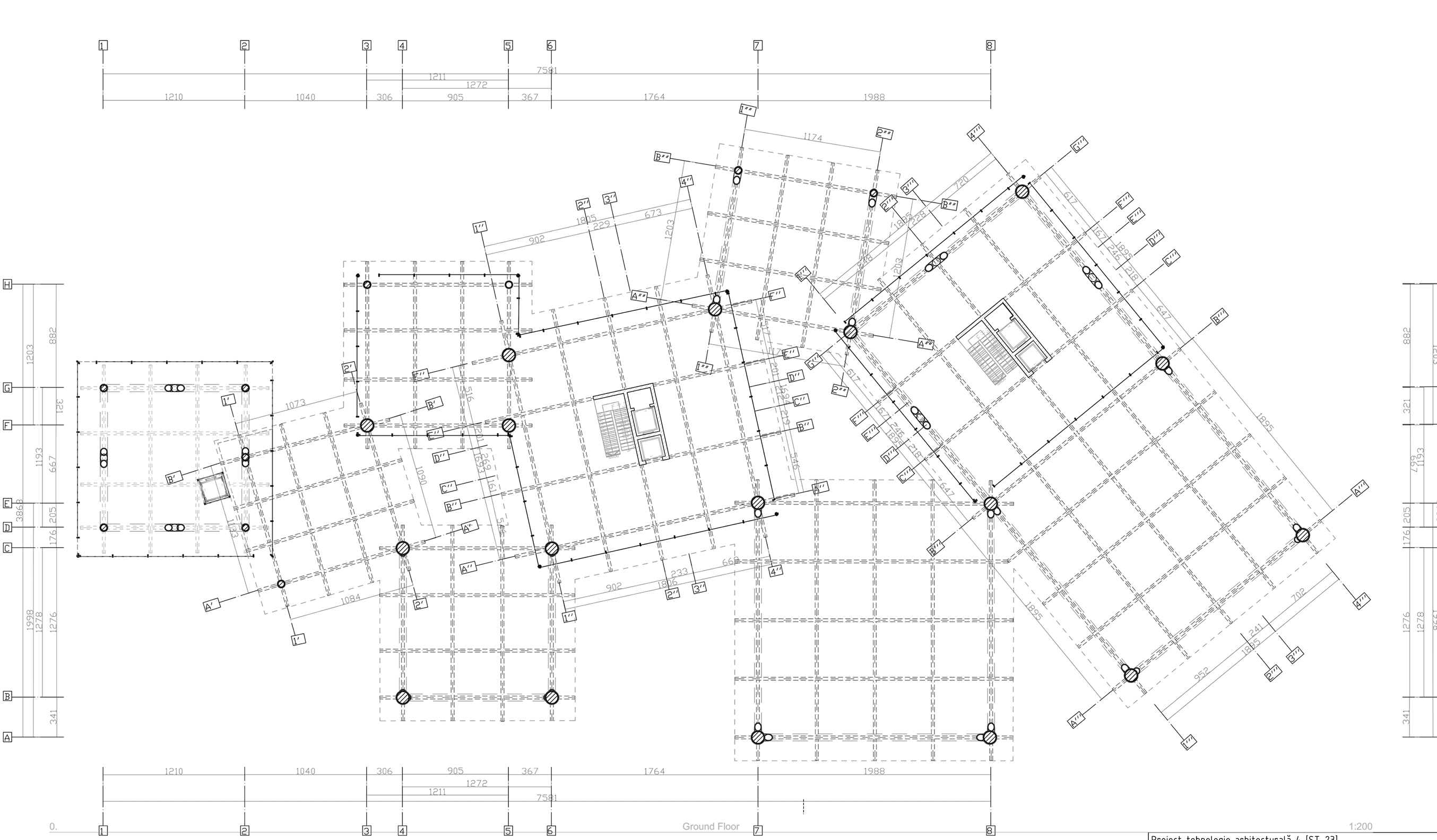
The concept begins at the scale of the site: an edge from the immediate neighbors was chosen as the reference dimension. This edge defined the radius of a golden-ratio circle that, once “exploded” across the context, generated a network of geometries. These geometrical constructions dictated the shapes and arrangement of the volumes in plan.

Alexandra Ganea

alexandraganea00@gmail.com

© Alexandra Ganea, 2025