Collective Housing, Bucharest, Romania

Project overview

The project explores collective housing as an urban infrastructure that connects social practices, cultural identity, and contemporary living needs. It examines how housing can balance densification, healthy environments, and technological progress while serving as a shared ground between individual and collective life.

Specifications

Area of site

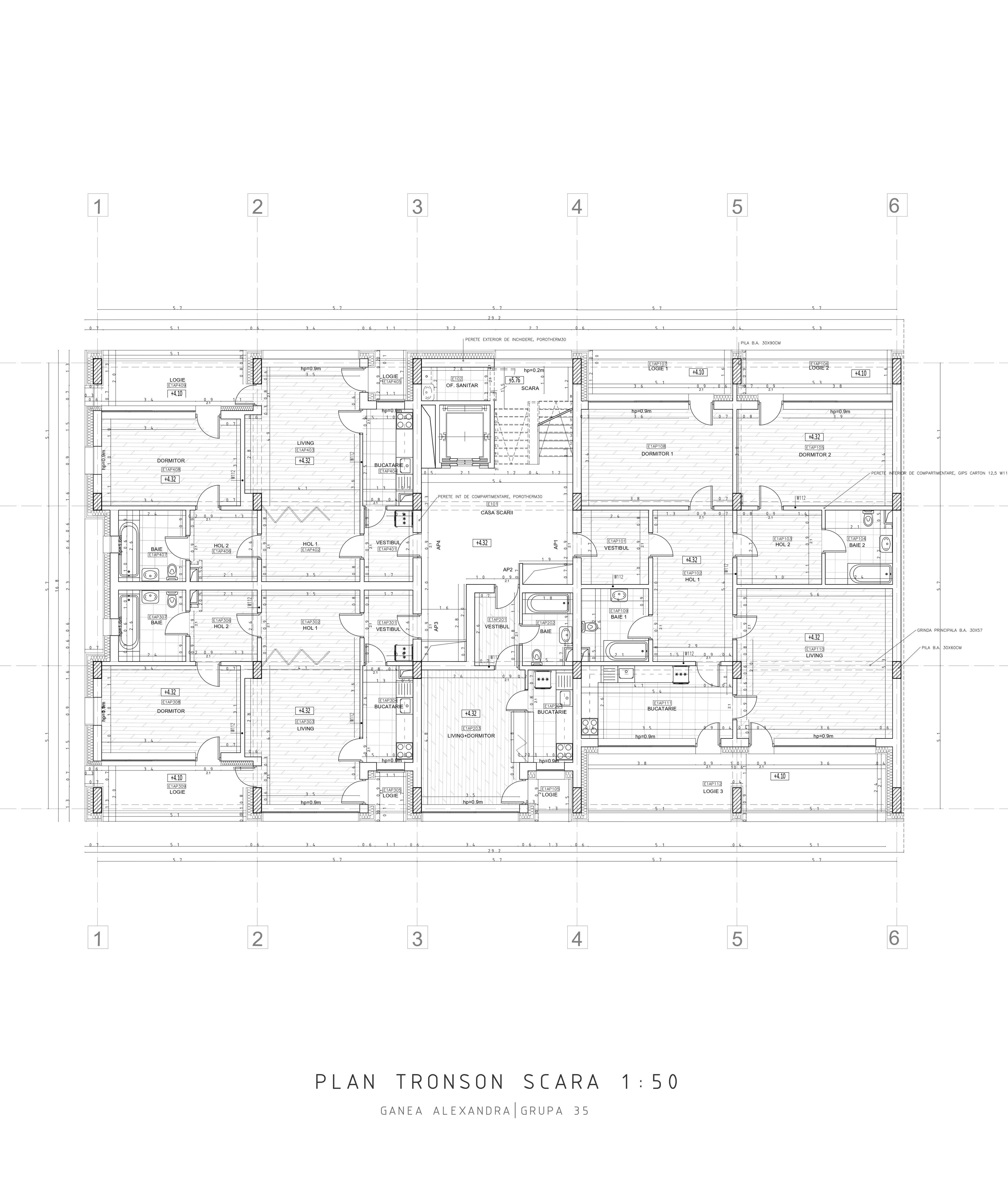
4700 m2

Date

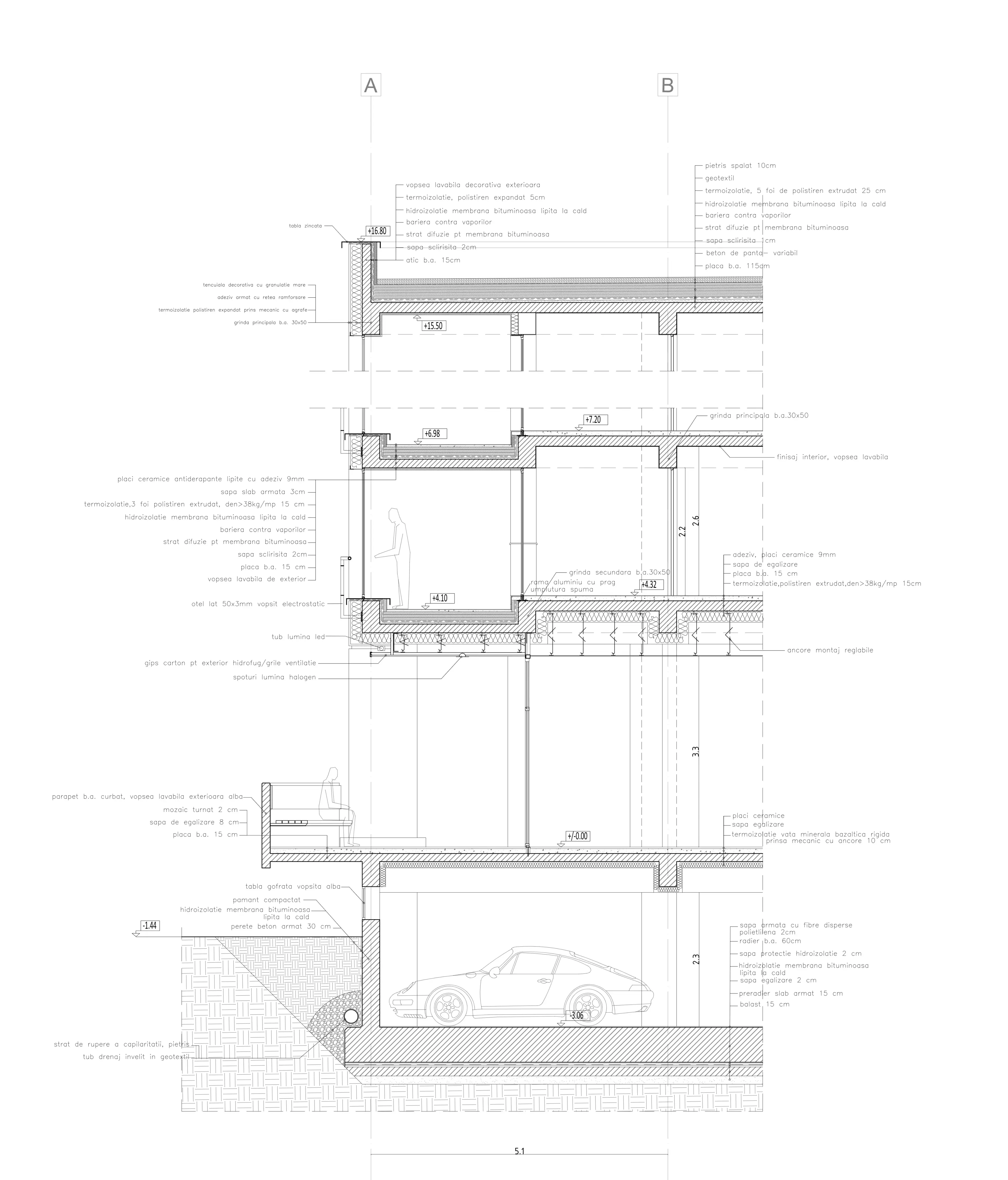
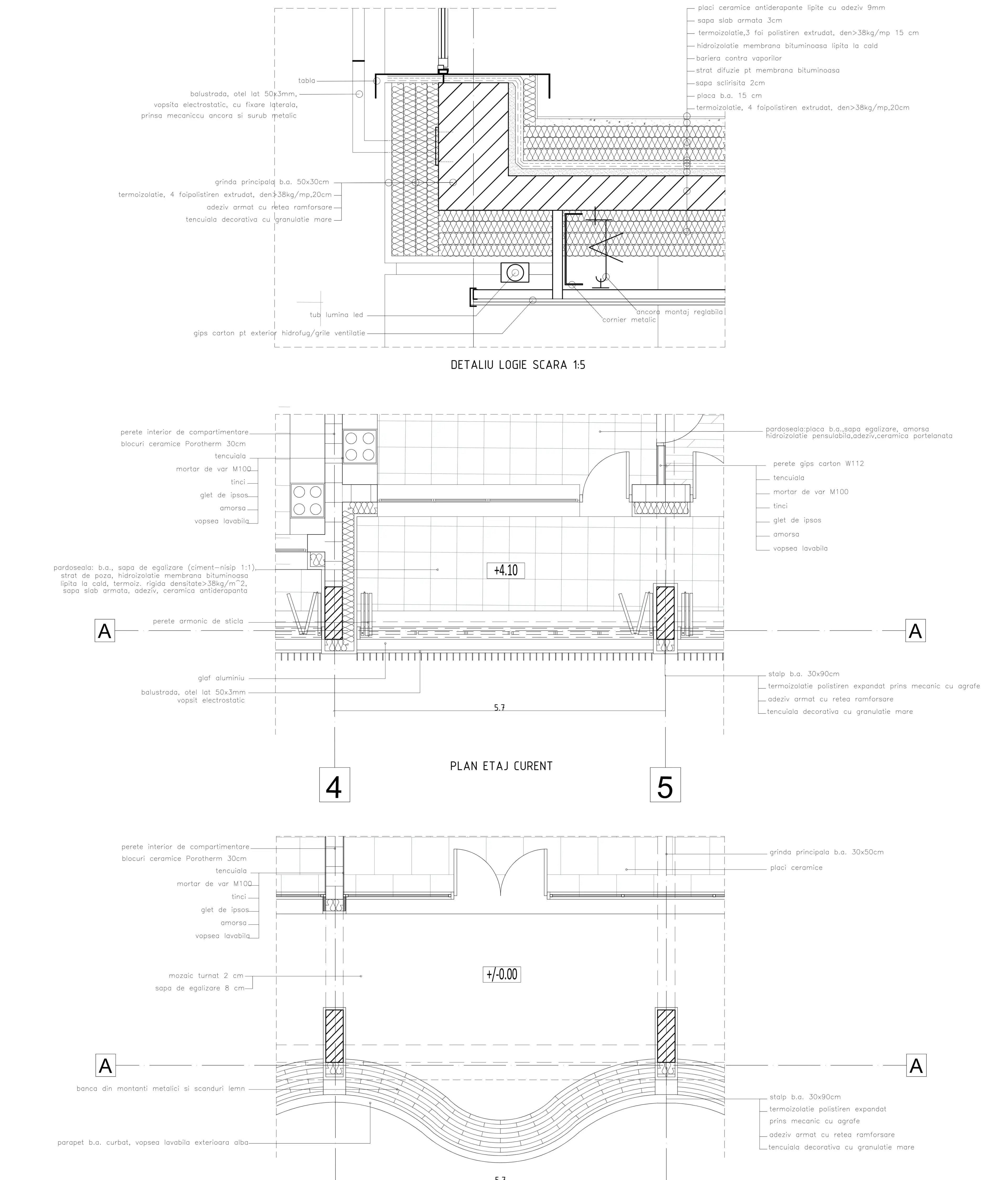
2022

Tools used

AutoCAD, SketchUp, Lumion Photoshop

Concept

The concept responds to increasing real-estate pressure in the city by proposing a high-quality residential ensemble of 60–70 apartments for affluent residents. It integrates architectural typologies, density, height, and complementary public functions to ensure the project becomes part of the city’s socio-urban fabric, addressing debates about urban densification.

Alexandra Ganea

alexandraganea00@gmail.com

© Alexandra Ganea, 2025