Freelance - Apartment renovation, Brasov, Romania

Project overview

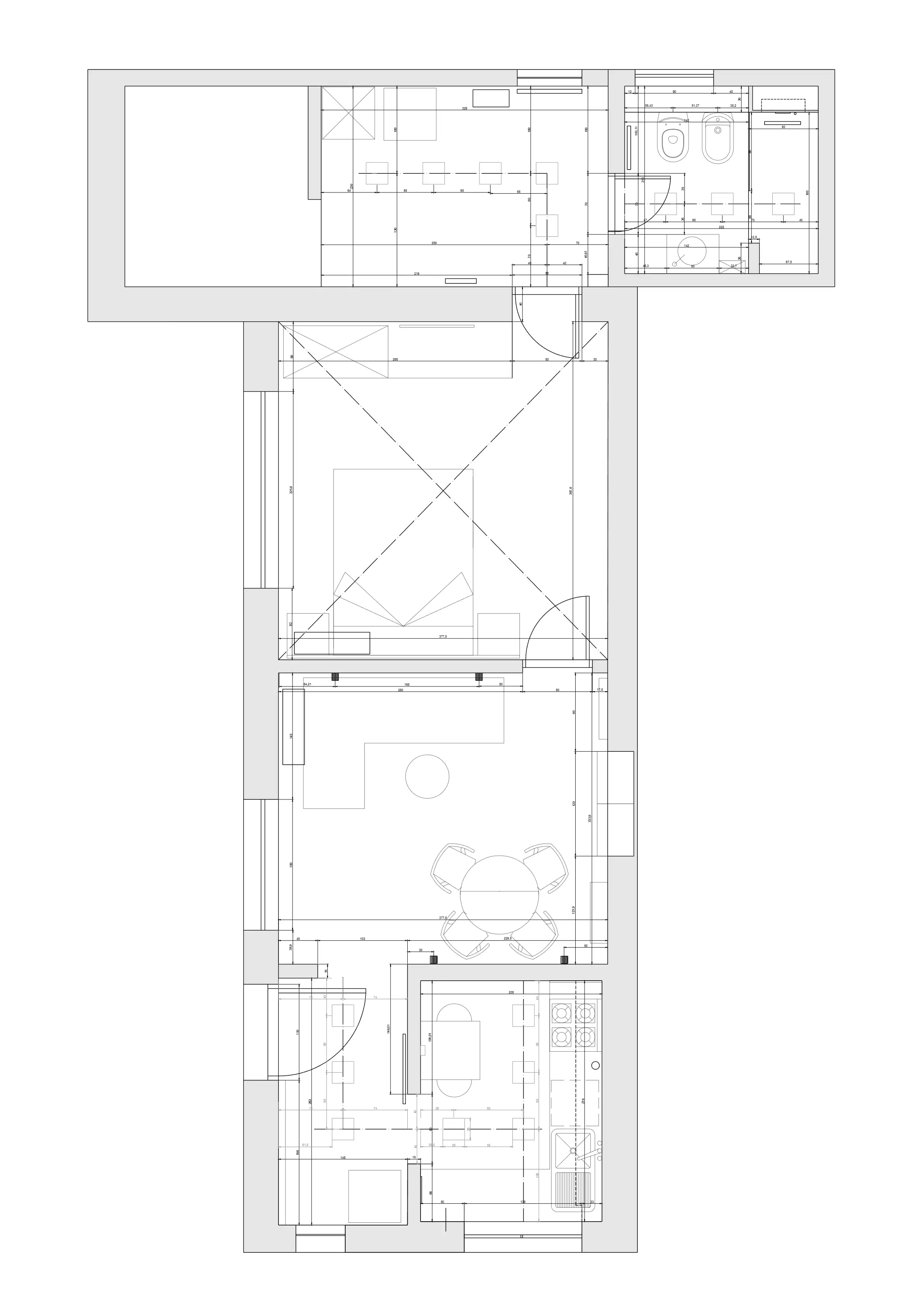
This project focused on the renovation and complete fit-out of an apartment located in the historic center of Brașov, within a 1910 house. Although the apartment operates in a short-term rental format, it was designed and equipped to function as a fully livable home, offering the comfort and practicality of long-term residence.

I independently coordinated the entire process—from concept and architectural renovation to budgeting, furnishing, and final styling. The result is a contemporary, functional interior that respects the character of the old house while providing a modern, ready-to-live-in space.

Specifications

Area

80 m2

Date

2022

Status of the project

Finished

Tools used

AutoCAD

Alexandra Ganea

alexandraganea00@gmail.com

© Alexandra Ganea, 2025