Galata Fashion House, Istanbul, Türkiye

Project overview

This project involves the design of a fashion house located in the heart of Turkey’s major fashion capital. The site lies within Istanbul’s historic center, in a protected area, and the aim of the project is to integrate a contemporary architectural approach into a rich historical context. The design respects the existing heritage by continuing its aesthetic language while also responding to modern functional requirements.

Specifications

Area of site

3000 sqm

Date

2025

Tools used

Revit, AutoCAD, 3ds Max, V-Ray, Photoshop

Concept

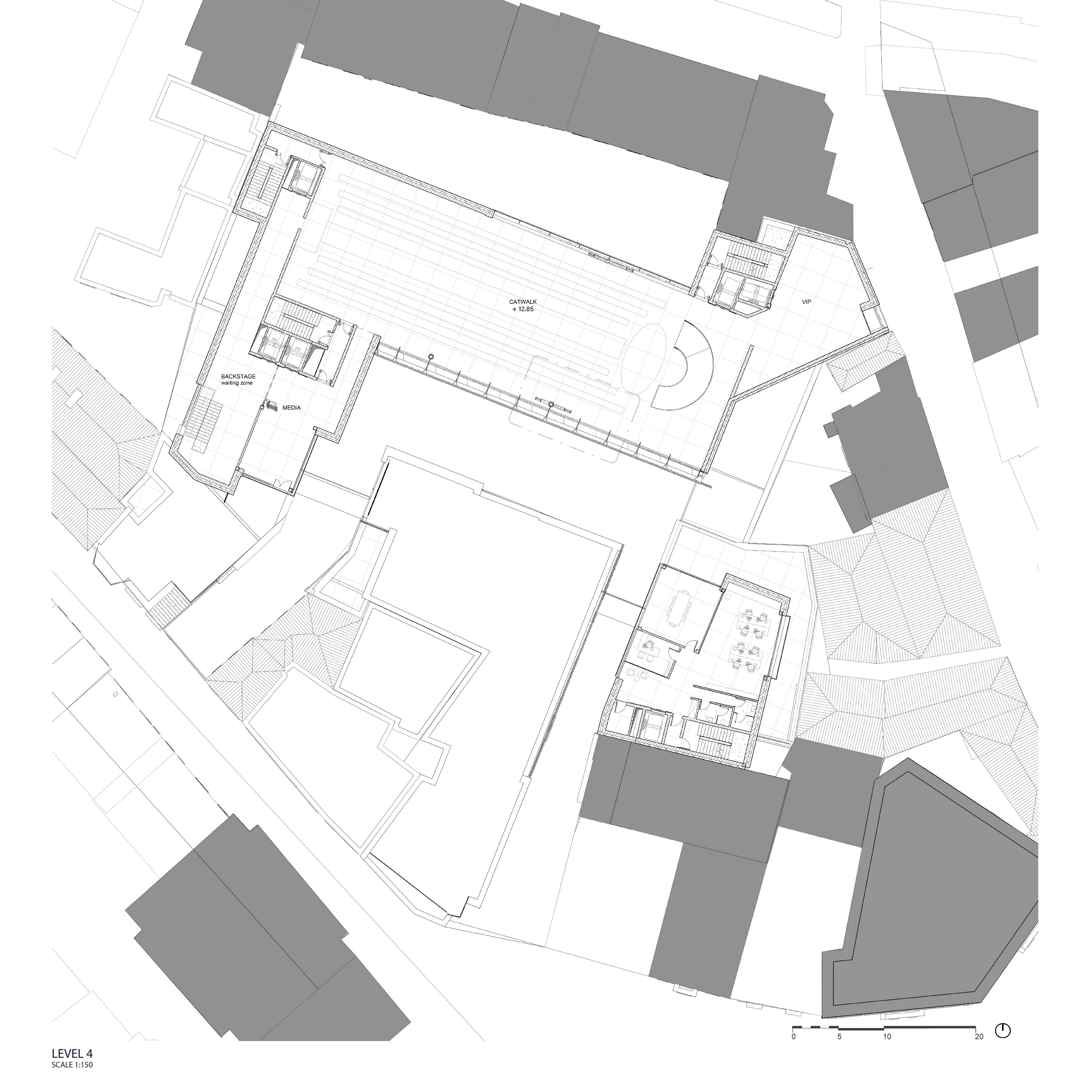
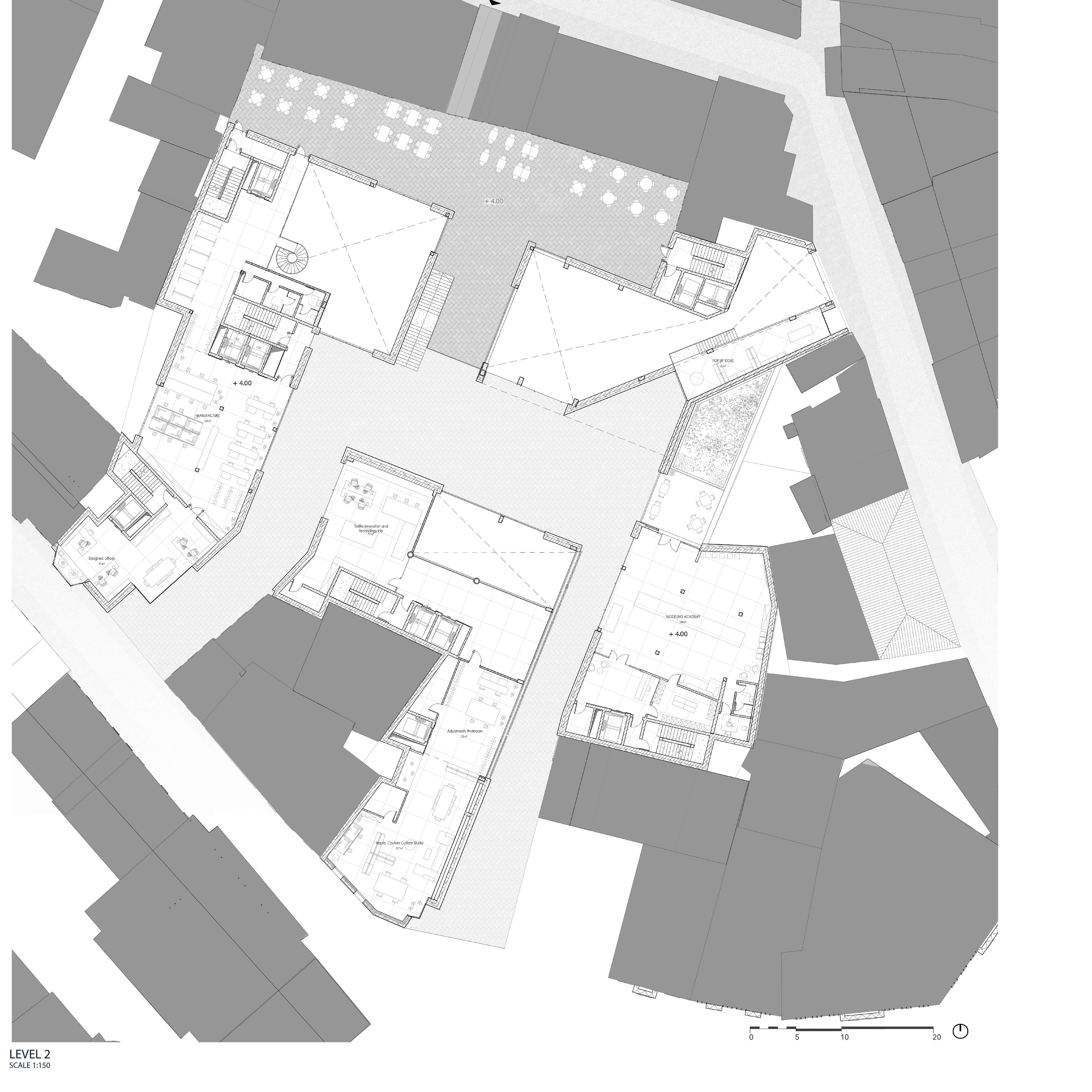
The project is rooted in an urban fabric shaped by gradual, incremental growth—dense, irregular, and defined by a network of winding streets, inner courtyards, and hidden passages. The sloped terrain, with an 8.5-meter level difference, drives a vertical spatial journey through the fashion house, unfolding both public and private functions across multiple levels. The design embraces the local typology of courtyards by creating two terraces at different heights, around which circulation weaves. Multiple access points activate the building at street level, while an ascending public route connects the store, the first courtyard, and via a passage, the second street—transforming movement through the building into a staged experience that mirrors the choreography of a fashion show.

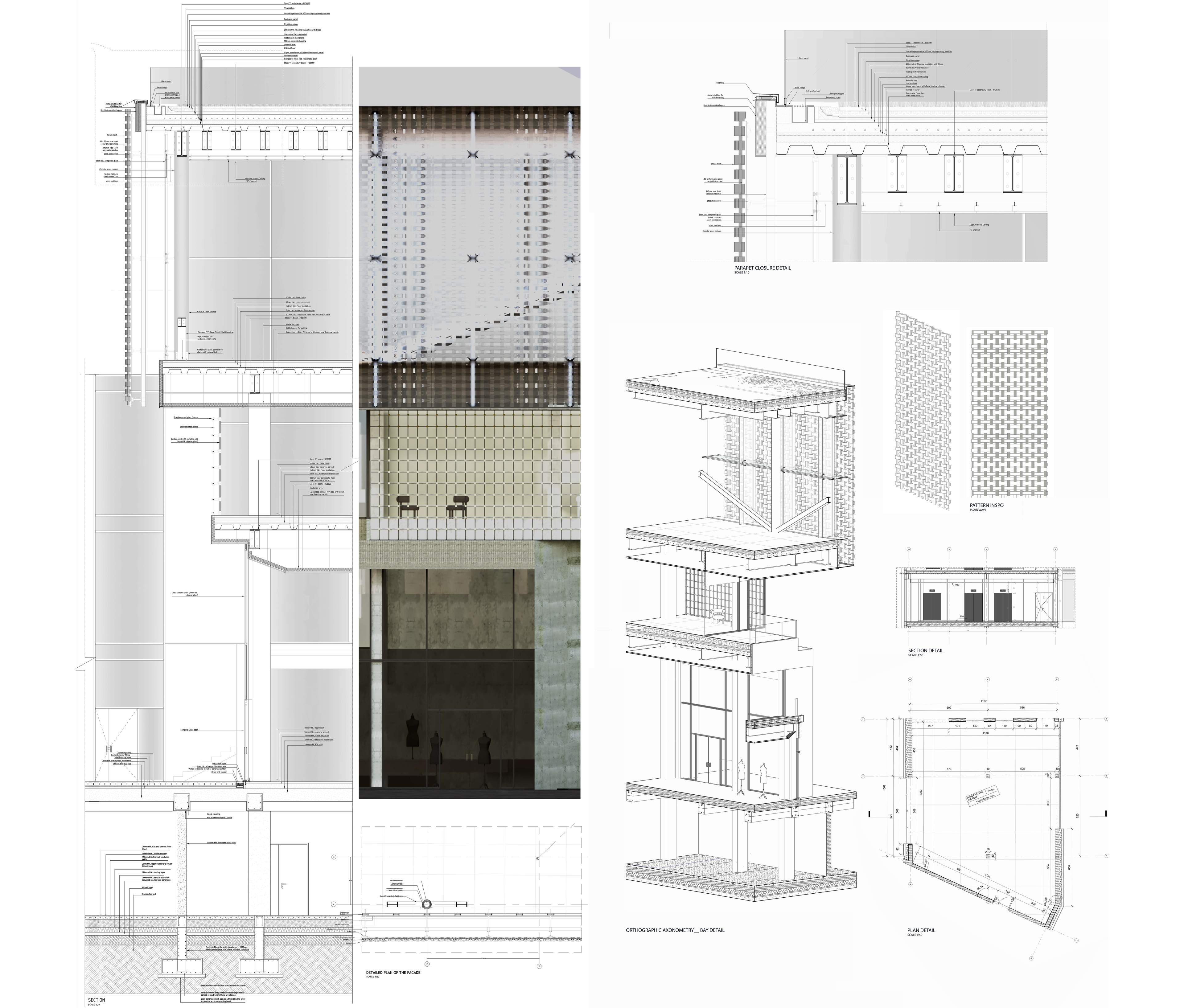
Materiality and Facades

The architectural language responds to the city’s traditionally solid streetscapes, where mass outweighs void and façades carry depth and weight. The facades oriented to the city adopt familiar proportions and balcony elements, grounding the building in its Ottoman context. However, toward the courtyards, larger openings reveal interior activity and extend visual dialogue with the public spaces. The mesh-glass double skin facade is inspired by textile weave, forming a fluid, curtain-like surface. This layered materiality creates for the upper levels privacy while preserving outward views, echoing historical screened windows from the ottoman times.

Alexandra Ganea

alexandraganea00@gmail.com

© Alexandra Ganea, 2025