Modern Art Museum - Conversion,  Bucharest, Romania

Project overview

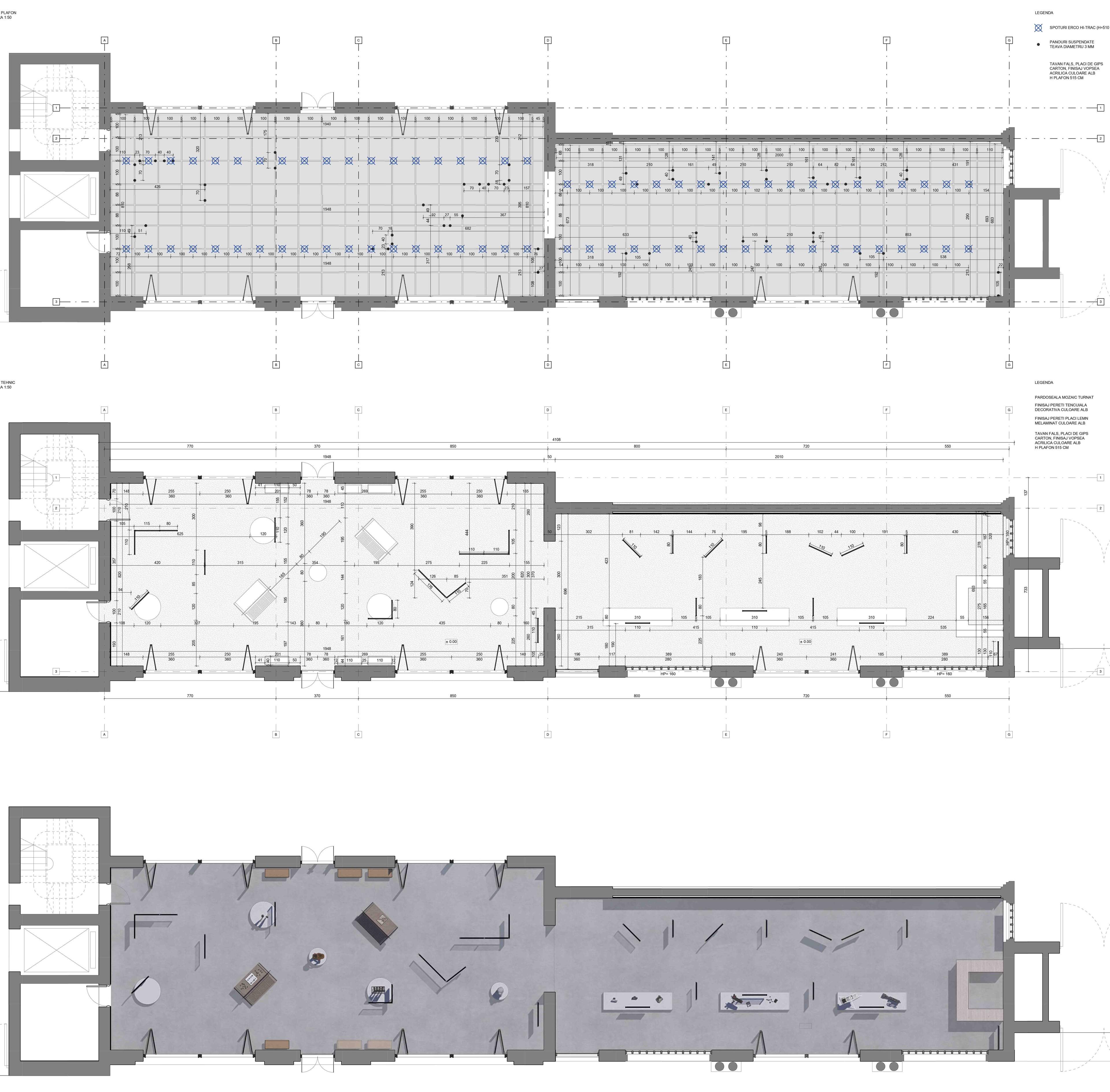
The project envisions the transformation of former garages in Bucharest into a contemporary, vibrant cultural venue. Through thoughtful and minimal intervention, the existing structure is revitalized into a modern exhibition environment while preserving its historical character. Spatial reconfiguration, enhanced openness, and integration of a new extension create an inviting atmosphere for exploration, interaction, and future artistic programming. The initiative aims to renew an abandoned urban site and establish a meaningful cultural destination within the city.

Specifications

Area of site

14300 m2

Date

2023

Tools used

AutoCAD,  SketchUp, 3dsMax, V-Ray, Photoshop

Concept

The concept is rooted in the dialogue between old and new—honoring the authenticity of the original building while introducing contemporary architectural language.

  • Reuse of the existing building: Preserving original features honors the building's history. The yellow on the drawings represents what was demolished, red-what is new and black-not changed elements.

  • Space reconfiguration: Flexible layouts enhance the flow between exhibition areas.

  • Integration of the extension: Modern addition complements the original structure.

  • Light and space: Bright, open spaces invite exploration and interaction.

Alexandra Ganea

alexandraganea00@gmail.com

© Alexandra Ganea, 2025